Написать нам
Избранных объектов 0
Avalon Slogan
Открыть форму поиска Поиск

Новострой: ЖК «DERBY style house» в Одессе



Адрес
Фонтанская дорога ул.
Этажность
10
Цена за м2
795 у.е.
Первый взнос
25%

«DERBY style house»

 современный стильный комплекс, расположенный на 4-й станции Большого Фонтана. Эксклюзивный дизайн фасада и архитектурное исполнение создают особую завораживающую красоту, проникнувшись которой, Вы захотите остаться здесь навсегда. При возведении комплекса использован один из самых экологичных материалов - красный кирпич.

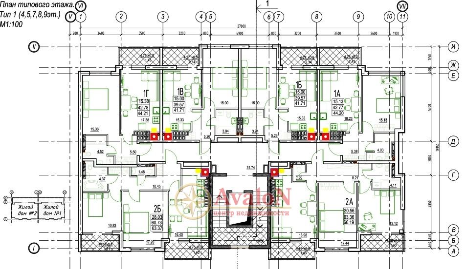
В состав комплекса входит три дома, предусмотрен подземный паркинг. Сейчас в продаже первый дом, десять этажей, состоящий из двух секций. На каждом этаже всего шесть квартир, две двухкомнатные и четыре однокомнатные. Территория комплекса закрыта от постороннего доступа, находится под круглосуточной охраной и видеонаблюдением. В каждой квартире предусмотрено индивидуальное автономное отопление - двухконтурный котёл. В комплексе будут установлены генератор электроэнергии и резервуары с водой. Особое внимание уделено благоустройству и озеленению придомовой территории. 


В продаже 1-, 2- и 3-комнатные квартиры, которые запроектированы с 3-го этажа. На 1-ом и 2-ом этажах к продаже предлагаются помещения под коммерческий вид деятельности, как фасадные, так и с выходом во двор. Возможно объединение любых расположенных рядом квартир и помещений. Также на территории комплекса строится бизнес-центр, в котором Вы можете приобрести офисное помещение.

Сейчас у Вас есть возможность приобрести квартиру в одном из лучших районов города по максимально выгодной цене. Цена квадратного метра от 795 у.е. Действует система рассрочки с первоначальным 25-процентным взносом.

Первая очередь сдана.
Введение в эксплуатацию второй очереди - 4-й квартал 2021 года.
Третья очередь вводится в эксплуатацию в течении 20-ти месяцев после формирования подписки.

Дополнительных расходов при заключении договора покупатель не несёт.


У Вас возникли вопросы? Звоните нам - и мы с радостью предоставим Вам подробную консультацию!


Телефоны для связи

Отдел бронирования:
Французский бульвар, 9: тел. (048) 700-60-12, (063) 602-90-94
ул. Ак. Королева, 33: тел. (063) 441-64-61, (067) 188-11-25
Ответственный менеджер:
Полонский Глеб Владимирович 098-432-03-63, 063-569-21-92, 099-524-12-07

Хочу купить
Поиск по ID
1 2 3 4 5 +

Недвижимость на 30.05

Оставьте заявку и наш менеджер свяжется с Вами в кратчайшие сроки.

Служба качества

Вы можете оставить Ваши отзывы или задать вопрос.

E-mail: info@avalon-odessa.com
Телефон: +38(067)251-40-40
Звоните:10:00 - 19:00